lunev83

lunev83

На Пикабу
26К рейтинг 2177 подписчиков 0 подписок 4 поста 3 в горячем
Награды:
10 лет на Пикабуболее 1000 подписчиков
1138

Томская башня снова передает привет

Здравствуйте, все!

Не знаю, будет ли кому-то интересно, но работы внутри моей водонапорной башни продолжаются. Целый год ушел на шлифовку и прочие работы с деревянными стенами на пятом этаже. Зато теперь они смотрятся отлично :-) И сложная лестница с пятого на шестой этаж из 125-летних досок. И декор по периметру крыши. Все это в немного занудном "дедушкином ютубе". Если я о чем-то забыл рассказать - спрашивайте!

5491

Еще немного про томскую башню: ответы на ваши вопросы

Две недели назад, сидя в Екатеринбурге на Форуме хранителей башен и подземелий (я не шучу - ссылка), я в свободный вечер написал пост на Пикабу про нынешнее состояние старой водонапорной башни в Томске. Я не был уверен, что кому-то будет еще интересна эта тема, за шесть лет я неслабо задолбал со своей башней весь доступный интернет. Но, думал я, если будут у кого-то вопросы, я всегда могу продолжить рассказ в комментах. Я ошибся в обоих случаях. Было много вопросов, уточнений, на меня в инстаграме и Пикабу сразу подписалось очень много людей, но устройство комментов на этом сайте совершенно не располагает к ведению полемики или длинным рассказам по частям: бОльшую часть моих комментов уже никто не читал :-)


Поэтому вот еще один пост. И если вам лень читать многобуков, то для начала видео, специально для вас записал:

Теперь ответы на самые частые вопросы прошлого поста:


1. Покажи как там внутри!

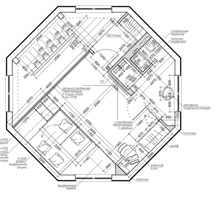
Смотрите видео :-) Пока идет ремонт, ничего особого внутри нет. Могу показать чертежи двух верхних этажей, на которых сейчас кипит работа. Пятый:

Шестой:

Есть еще красивенькие рендеры (но я уверен, что у меня так нарядно ремонт не получится)

2. Сколько стоило?

Башню с участком земли мне в конце 2012 года мэрия продала за 1,5 миллиона рублей. За шесть лет ушло еще больше 4 миллионов в ремонт и реставрацию, благодаря этому я разорился и еще долго-долго буду выкарабкиваться из долговой ямы.


3. Что за пристройка к башне?

Исторически на этом месте был угольный сарай. В 80-е годы площадку заасфальтировали, там было кафе:

В 90-е арендаторы-чебуречники потихоньку нафигачили там адских трущоб из подсобных материалов:

Построено это было незаконно, томская мэрия долго лепила на здание бумажки с требованием снести эти шалаши, но ИЧП "Голубой огонек" в конечном итоге бесследно исчезло, а мэрия взмахнула волшебной палочкой и превратила эти развалины в капитальное здание, часть первого этажа башни со своим тех. паспортом. В этом виде оно и было мне продано. Я, кхм, починил пристройку, разместив там котельную и другие технические службы, кхм-кхм.

04. Мути ютуб-канал, собирай донаты!

Спасибо, нет. Мне очень помогли деньгами леперы и другие люди в интернете в 2013-2015 годах, но кризис миновал и я потихоньку справлюсь сам. Но я еще раз выражаю свою огромную признательность тем, кто помогал мне раньше и хочет помочь сейчас (после прошлого поста на пикабу и моей неосторожной формулировки про масштаб помощи леперы очень обиделись и понаписали мне всякого)


05. Как ты ее в жилое перевел???

А я не переводил. Мне это просто не нужно, прописываться в башне я не собираюсь, коммунальные тарифы для нежилых зданий тоже проблемой не являются. Но процедура перевода в жилое, конечно, существует - сложная, муторная, долгая, а в случае с памятником культуры всё еще хуже. Так что в обозримом будущем нет.


06. Шутки про Рапунцель и "Черновик" Лукьяненко.

Ааааааа!!! Хвааааатит, пожалуйста! Как вы думаете, что мне чаще всего говорят в течение этих шести лет? Бедный писатель икает каждый раз, когда вы поминаете его имя всуе.


07. У тебя есть ЖЖ? ВК? ФБ? ОК? ИГ? Снэпчат? Ютуб-канал?

Активнее всего я спамлю у себя в инстаграме: https://instagram.com/lunev83

ЖЖ заброшен, там когда-то копились фотоотчеты, но недавно оказалось, что старые фотки протухли, а мне лениво писать длинные тексты.

ФБ и ВК работают в основном кросс-постами из инстаграма.

Больше у меня ничего нет :-)


08. Обшивка доской отвратительная! Сарай-пристройка ужасен! У тебя совсем нет вкуса!

Да, у меня нет вкуса. Зато есть башня :-)


09. Как отапливаешься? Как борешься с конвекцией и тягой в такой трубе?

Два верхних этажа будут отапливаться автоматическим пеллетным котлом, греющим теплоноситель в теплом полу. Плюс воздушная система вентиляции с подогревом воздуха электричеством. В следующем году хочу врезать туда тепловой насос "воздух-воздух". Нижние четыре этажа в кирпичной части пока не отапливаются, туда очень много мощности надо. На четвертом этаже будет перегородка, отделяющая холодные этажи от теплых, дальше буду смотреть, насколько серьезный температурный градиент будет наверху.


10. Какие площади у тебя там? Что будет на каждом этаже?

На первых четырех этажах площадь 19 кв. м минус лестничный проем. На пятом этаже примерно 40 кв. м, на шестом около 30 кв. м. Первый этаж - прихожая, второй - мастерская, третий - хоз.блок, четвертый - ванная, пятый - гостиная+кухня, шестой - спальня+санузел.


11. Почему нет лифта?

Потому что памятник и денег столько нет. Может, к старости?


12. Девчонок небось клеишь: "Эй, хочешь посмотреть мою башню?"

No comments


13. Вода, газ, отопление, канализация?

Вода - да, в неограниченном количестве благодаря самому старому участку томского водопровода, который как раз кончается в моем подвале. Газ - нет, далеко и дорого. Канализация - скорее да, чем нет, но есть свои сложности, которые требуют рытья подземных ходов из подвала :-) Отопление и горячая вода - пеллетный котел


14. Открой ресторан! Устрой площадку для квестов! Нет, лучше эксклюзивную мини-гостиницу!

Я все-таки хочу в башне жить. Ну, может, буду раз в неделю водить экскурсии, сейчас народ постоянно ломится посмотреть, как там и что.


15. Зачем все это? Что за дешевые понты? Обычный дом гораздо удобнее.

Ну, насчет цены понтов я бы тут поспорил, конечно. Обычный дом гораздо удобнее, это факт. Но о чем бы я тогда писал на Пикабу и лепре?


16. Я тоже хочу башню! С чего начать?!

С посещения психотерапевта :-) Но если серьезно и очень-очень кратко, то надо сначала определить объект своей любви, изучить его состояние, оценить свои возможности (я свои сильно переоценил) и искать собственника. Потом в зависимости от намерений - уговаривать либо на продажу, либо на аренду. И, как ни парадоксально, земля часто оказывается важнее здания, которое на ней стоит, так что сначала решайте вопрос с участком. Можно попытать локальную дирекцию РЖД в вашем регионе, у них много башен на балансе и они не особо знают, что с ними делать.


17. Пластиковые в деревянном памятнике? Да ты охуел! Варламов тебя с говном сожрет!

Да, скорее всего, доберется когда-нибудь до Томска и сожрет, это точно. Но я действую и выбираю материалы сообразно денежным возможностям. Когда ситуация станет лучше заменю окна "под дерево" на натуральное дерево, это раза в два-три дороже стоит.


18. Это у тебя Фишай в гостях был пару лет назад?

19. Да ты заебал уже со своей башней, попрошайка! В каждую дырку залез, нигде от тебя не спрятаться!

Там внизу есть теги, говорят, что можно их игнорировать.


20. Как сделана лестница?

Гнутые стальные пластины связаны друг с другом шпильками, крепятся к стенам и угловым поворотным площадкам. На перекрытие опоры нет, висит на каждом этаже в воздухе.

Уфффф. Вроде всё. Если вы дочитали досюда, то поздравляю, вы очень настойчивый(ая).

Спасибо!

Показать полностью 14
15545

Томская башня жива

Тут сегодня в посте про продажу башни у Варшавского вокзала многие пикабушники вспоминали психопата, который выкупил башню в Томске и перепиливает ее под свое жилье. Оказалось, некоторые товарищи полагают, что психопат отчаялся и забросил проект. Так вот. Не отчаялся и не забросил.


Этот психопат - я.


Меня зовут Александр Лунев и этой зимой я собираюсь переехать жить в свою водонапорную башню. Если у вас есть вопросы - задавайте в этом посте. Я постараюсь комментами выложить еще свежих фоток.

Показать полностью 2
441

Томской башне нужна ваша помощь

Привет, Пикабу.
С февраля этого года пикабушник MrSunsin достает вас рассказами о том, как я реставрирую старую водонапорную башню в Томске. В результате этого многие добавили в игнор тег "человек и башня" :-) Но вместе с тем, многим полюбилась моя башня, люди следят за работой и сопереживают.

Когда я начал бороться за то, чтобы томская мэрия продала это здание в частную собственность, башня, давно внесенная в список памятников архитектуры, не ремонтировалась ни разу. Лишь один раз, в восьмидесятых годах прошлого века в здании делали косметический ремонт. И то, лишь для того, чтобы открыть в нем чебуречную.
Башня стояла бесхозной и потихоньку ветшала, в городском бюджете не было денег на то, чтобы заняться ремонтом и реставрацией памятника.
В начале 2013 года я все-таки добился своего, и мэрия отдала мне башню, обязав произвести полный ремонт и реставрацию за свой счет. Полтора года я тратил на эту работу все свое время и деньги, практически перестав заниматься чем-либо еще. Это оказалось безумно увлекательно и чрезвычайно затратно.
Сейчас у башни новая крыша, утеплен чердак, приведены в порядок внутренние деревянные стены, подключены вода и электричество, залиты этажи и раскопан подвал. Подвал оказался с сюрпризом, настоящее подземелье с небольшими туннелями :-)
Когда мои ресурсы стали подходить к концу, я попробовал обратиться за помощью к государству. Оказалось, что властям не хватает денег даже на то, чтобы приводить в порядок памятники, которыми владеет муниципалитет. И если мне передали здание, то государство будет от меня только требовать реставрации, не давая никакой помощи.

Это обидно.
Это тем более обидно, что с началом лета я планировал взяться за реставрацию фасадов башни, привести в порядок ее внешний облик. Двадцатипятиметровое здание доминирует над целым районом, рекреационной зоной, где отдыхают многие томичи. В обновленном виде башня станет настоящим украшением города, а я с удовольствием водил бы по ней экскурсии, рассказывая вековую историю этого памятника. Но денег нет и непонятно что делать.

И тут мне порекомендовали подумать о краудфандинге. Модное английское слово означает общественное финансирование интересных проектов. Возможно, проект реставрации башни-памятника будет кому-то интересным?
Итак, барабанная дробь! Сегодня на сайте boomstarter.ru был запущен проект по реставрации Томской башни!
Вот ссылка:
https://boomstarter.ru/projects/lunev83/26420

Кто-то может сказать, что башня моя, а значит и все проблемы должен решать я сам. И если не справился своими ресурсами то не надо было и браться за этот безумный проект. Но на мой взгляд, реставрация памятника архитектуры является по-настоящему социально значимым начинанием. Если в своем "государственном" состоянии башня потихоньку разваливалась и была даже опасна для окружающих, то после реставрации она украсит собой город, а я обещаю водить по ней экскурсии, сделав ее настоящим достоянием всех людей. Но сделать это мы можем только вместе. Только объединившись, мы сможем доказать чиновникам, что люди могут сами добиваться своих целей, что единомышленники-энтузиасты способны сделать больше, чем неповоротливое и инертное государство!

Каждый из вас может не только получить на память сувенир, связанный с Томской башней, но и по-настоящему вписать свое имя в ее историю, получив именной кирпич в стенах башни. Это благородный поступок и память об этом поступке на долгие и долгие годы. Это то, что может сделать каждый из нас!

В общем, друзья, я еще раз предлагаю вам зайти на страничку проекта на Бумстартере
https://boomstarter.ru/projects/lunev83/26420
И переслать ее всем своим друзьям!
Показать полностью
Отличная работа, все прочитано!