Серия «Бесплатные проекты домов!»

63

У меня есть 6 еще законченных проектов, какой выложить?

Я всем благодарен за такую активную реакцию на законченные проекты, неожиданно, спасибо!

Сейчас нет совсем времени написать о каждом, но этом году у меня есть еще 6 построенных домов, какие выложить? Быть может кому то будет полезно, и Вы как раз планировали строиться

  1. Каркас 100 м2

2. Брус 147 м2 один этаж

3. Брус 128 м2

4. Газобетон 80 м2

5. Газобетон 90 м2

6. Газобетон 104 м2

Показать полностью 6
6591

Небольшой, но свой - дом 90 м2, проект + смета

Я закончил строить небольшой домик 9 на 11,5 метров. Кому-то покажется он совсем маленьким, но для небольшой семьи вполне достаточно для того, чтобы начать жить в своём небольшом уютном гнёздышке.

Дом строился этим летом. Сегодня я выложу проект и стоимость этого дома!

Вот такой дом получился

Вот такой дом получился

А это как он будет выглядеть после отделки:

Дом строился на ленточном фундаменте. Бетона у нас ушло 18 кубов по 7,5 тысяч рублей. Сам бетон обошёлся в 135 тысяч рублей. Арматуры у нас ушло почти тонну на 80 тысяч рублей. Это основные затраты для монтажа фундамента.

Один из самых дорогих элементов в доме — это плиты перекрытия. Плиты перекрытия выполнены из полистиролбетона. Помимо высокой стоимости армированных плит из полистиролбетона, в цену вошла очень дорогая доставка. Дело в том, что объект находится от производства на расстоянии более 100 км, поэтому пришлось сюда гнать технику, доставляющую плиты большой длины, и выставлять кран для того, чтобы их разложить. В общем, удовольствие недешёвое. Сами плиты стоят 614 893 рубля.

Ещё особенность таких плит, что они идут с небольшим заводским отклонением, поэтому выставить ровно отверстия в плитах под сейсмические колонны невозможно. Поэтому колонны мы прорезали — отверстия под колонны мы прорезали по месту. Это очень трудозатратно и, в принципе, дорого по износу материала и инструмента.

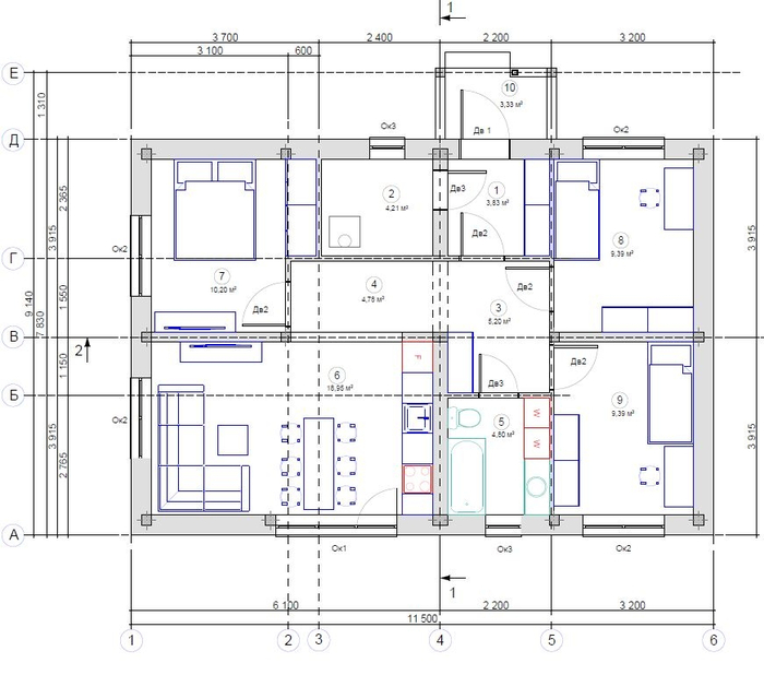
Выкладываю вам проектную планировку дома. В доме подразумевается всего девять помещений. Чистая площадь из 90 кв. м превращается в 75,9 м². В доме три спальных комнаты, кухня-столовая, санузел, два коридора, бойлерная и прихожая. Ну и также крыльцо — 3 м.

Далее по затратам. Арматуры ушло на колонны — это поперечная арматура — на 20 тысяч. Арматуры ушло на продольное армирование колонны на 30 тысяч. Также арматуры ещё дополнительно ушло на армопояс на 40 тысяч рублей.

Арматура для армирования через ряд, через по две нитки между газобетонными блоками, ушло на 25 тысяч рублей. Бетон на армопояс ушло на 25 тысяч рублей. Бетон на колонны и на перемычки ушло на 25 тысяч рублей.

План сейсмопояса

План сейсмопояса

План балок потолка

План балок потолка

План стропильной системы

План стропильной системы

Общая площадь кровли 140,41

Общая площадь кровли 140,41

Выкладываю план сейсмопояса, план перекрытия балок, чтобы вы могли использовать, если вам необходимо при строительстве. План стропильной системы и развёртка по кровле, чтобы вы могли заказать при необходимости кровельный материал. Это элементы архитектурного проекта. Полный проект, естественно, выложить сюда не получится, потому, что Пикабу принимает только определённое количество чертежей. Но для расчёта стоимости дома, для расчёта объёма по материалу при запросе со строителями или для того, чтобы определиться вам самим, нужен вам такой дом или нет, этого материала вам, надеюсь, вполне будет достаточно.

Газобетона толщиной 400 ушло 37,5 куба на 332 500 рублей. Газобетона толщиной 300 ушло 3,5 куба на 31 000 рублей. Газобетона толщиной 200 ушло 3,5 куба на 31 000 рублей. Газобетона толщиной 100 мм ушло 4,5 куба на 40 000 рублей. Газобетон стоил у нас во время покупки 8867 рублей за метр кубический. Это сезонное удорожание, зимой газобетон в Иркутской области стоит на 1000 рублей дешевле.

Также у нас ушло ещё плита ОСП на черновой потолок на 12 000. Минералватного утеплителя 14 кубических метров на 46 000 рублей. Пароизоляции и ветрозащиты на 20 000 рублей. Черепица плюс комплектующие обошлись в 280 000 рублей.

Окна комплект стоил 153 000. Монтаж окон — 80 000 рублей. Очень важно понимать, что дом находится на удалении более 100 км. Сюда вошла доставка и монтаж, и плюс расходники по монтажу окон.

Дорого или нет, сами решайте в комментариях, но качественно дешевле довольно сложно найти у нас в регионе. Домик, кстати, строился в городе Свирск, Иркутская область.

Ну и, конечно, самое любимое, что Пикабу любит — это стоимость за работы. Работа по фундаменту стоила 615 000 рублей. Работа по монтажу стен стоила 625 000 рублей. Работа по перекрытию потолка и перекрытию пола стоила 578 000 рублей. Работа по кровле стоила 365 000 рублей.

Это укрупнённые строчки из общего сметного расчёта, так как на все мелочи, типа монтаж крыльца и прочее, отдельно затраты не выносились, они были в общем объёме. То есть расчёт брался за всё, что вы видите. То есть в монтаж кровли, например, и монтаж стропильной системы отдельно считались, и монтаж кровли кровельного материала, но в итоговой смете есть укрупнённая расценка. Точно так же в монтаже перекрытия заложено и монтаж балок, и утепление, и монтаж плёнок, и обработка антисептическими составами, но всё это не выделено в отдельные затраты.

Я постарался максимально детально вам отразить нужные разделы проекта. Прошу строго не судить, если понравится, я выложу. У меня есть ещё один домик из газобетона приблизительной площадью...

Ну и на десерт, как говорится, общая стоимость дома обошлась: 5 029 700 рублей.

Сюда хочу также сказать, вошли все доставки всей техники, работы швингов, миксеров, того, чего не было в смете. Ну и, конечно, дом строился в ипотеку, поэтому большая часть удорожания связана с тем, что всё шло по безналичному расчёту.

Следующим постом будет еще один домик )

Показать полностью 19
4417

Небольшой уютный домик 9х11,5, зато свой3

Я построил небольшой дом размером 9 на 11,5 метров. Хороший уютный домик для семьи с спальнями для двух детей, для хозяина и небольшой кухней-гостиной.

Домик 100 квадратных метров - это всё, что нужно для собственного личного счастья за городом или в небольшой деревеньке. И необязательно строить сразу под ключ.

Сегодня опубликую вам фотографии, а в следующем посте выложу архитектурный проект, если кому-то понравится. Небольшой дом построен на ленточном фундаменте. Использовали плиты перекрытия из полистиролбетона. Кстати, кто ими пользовался, напишите своё мнение.

Стены из блока 400 мм толщиной с монолитными сердечниками сейсмо каркаса и сейсмо пояса по периметру здания. У домика небольшая двухскатная кровля с металлочерепицей в качестве основного кровельного материала.

Также у домика небольшое крыльцо.

Хозяйская спальня была спроектирована с небольшой нишей под личный гардероб или шкаф-купе. В доме также предусмотрено целых два санузла, огромный тамбур и холл.

Две детские комнаты по 10 квадратных метров. Я думаю, этого достаточно для детей. И 10 квадратных метров площадь комнаты у хозяев. При этом в дополнение сюда идёт большое пространство под гардероб.

Что подскажете по планировке? Как вам такая идея? Ну и в следующем посте выложу проект, кому хочется построить дом из этого материала.

Показать полностью 8
8

Очень доступный пятикомнатный дворец!

Что делать, если нужно построить небольшой домик площадью 110 кв.м, но для большого количества жителей? Мы как раз сдали такой интересный проект в Баклашах. Это двухэтажный дом из бруса, который идеально подходит для размещения большой семьи.

На первом этаже расположена огромная кухня-гостиная и терраса, где можно собираться всей семьей и наслаждаться общением. Также здесь есть помещение для тамбура, техпомещения, санузла и, что очень часто встречается в запросах, спальня на первом этаже. Это удобно для хозяев или престарелых родителей, которые не хотят подниматься на второй этаж.

На втором этаже этого уютного дома расположены две обычные детские комнаты, санузел и огромная мастер-спальня или спальня хозяев с собственным гардеробом.

Домик очень аккуратно смотрится на фоне живописной природы с молодыми соснами.

Если кому-то интересно посмотреть на планировку этого дома, просто скажите мне, и я с радостью поделюсь!

Показать полностью 5
5370

Небольшая квартира на собственном участке - 70 м21

Эта статья, для тех кому не нужно 300 м2 своего дворца, а достаточно небольшой квартирки на собственном участке

поехали:

Собрались мы построить небольшой домик! Задача довольно частая, если поехать в садоводства с недорогими участками, то можно встретить много домов небольшой площадью. Постройки от 12 м2 до 70 м2 можно найти и там и тут. Даже есть отдельное такое направление строительства небольших домиков

Вот и мы построили такой, 7 на 10 м )

Домик со вторым светом )

В следующем посте выложу проект и смету, сегодня фото по дому ну и дом )

Вообще я встречал много комментариев про стройку по типа «конура, сарай, да у меня у пса больше дом». Не понимаю, как можно так отзываться о чьем то доме. Ну нет у нас как минимум у половины страны возможности построить и содержать дома от 150 м2.

Вы знаете какие самые популярные квартиры в Иркустке? Квартиры студии, большое жилое пространство + сан узел, если денег хватает, то будет еще несколько совсем небольших комнат. И что плохого иметь то же самое но на природе?

Вот и мы такой построили

Фундамент сваи, железобетонные, забивные. Здесь в садоводстве глина сплошная, все пучит, плюс уклон участка не маленький, вот во имя экономии в экономном доме экономный фундамент) Зато надежный, свайщики обещают 150 лет гарантии

В доме очень большие окна, второй свет. О, сколько в этой гостиной света! Второй свет это мечта. Легко дышится, очень просторно. Особенно приятно из такой комнаты выходить на свежий воздух. Фотографировал золотой осенью, так что вы можете оценить масштаб вдохновения )

Терраса - это не первоочередные затраты, по этому работы выполнены ровно на столько, чтобы отпустить строителей, а не ответственную работу доделать позже )

Фасад довольно простой, без каких то излишек, стандартная плитка с битумной основой, все ровненько, не деформирует не ведет.

Ну и конечно внутри )

Все лаконично: небольшая кухня студия, сан узел, и 3 спальни. Можно было бы разбежаться на пару метров влево и вправо, но в этом то и суть )  По моему все лучше чем квартира той же площади но за 10 млн )

Планеровочка! Вы это любите) Можете сколько угодно говорить про архитектора, но если так нравится, то поспорить сложно) Можете накидать свои, самые лучшие планировки в комментарии, я хоть поучусь "как надо"

Если Вы не в восторге от маленьких домов, я оставлю комментарий для минусов)

Если интересно, то следующим постом выложу статью с проектом и сметой)

Показать полностью 12
160

100 квадратных метров своего собственного хозяйства или квартира студия в 30м2?7

Именно такой выбор будет стоять у вас если в кармане не больше 6 млн, а на дворе 2024 год! Я закончил строить домик в 100 м12 и сегодня Вами расскажу об этом.

И да, тут сразу придет 100 пятьсот человек, которые напишут в комментариях, что их дом в 2000 квадратов – это самое оно, а не ваша канура, но на мой взгляд, такой домик будет очень хорошим решением для семь с небольшим бюджетом, или для того , кто не хочет увлекаться оборкой огромной усадьбы.

Собственно вот такой домик получился!

И небольшой обзор домика

Домик построил этим летом. Два этажа, 100 м2. Строился из бруса естественной влажности. Материал не дорогой, и даже сейчас по 18 000 за м3 можно купить. От того и такой популярный. Из бруса строят у нас все, много, от того видеть такой дом привычно и не боязно на своем участке.

Если же по материалу у Вас есть сомнения, в посте ранее есть моё более взвешенное мнение о дереве, там можете посмотреть.

Всего у дома два этажа. Весь проект (сможете скачать) и смету я выложу в следующем посте.

На первом этаже помещения для активности: кухня , гостиная, тамбур, сун узел, тех помещение и даже небольшой кабинет

Второй же этаж для спокойствия и отдыха. Спать, отдыхать, делать уроки.

Здесь 3 спальни, гардеробная, и сан узел.

Фундамент – жб сваи, Материал простой, понятный, привычный для нашего региона – Иркутска. Сваи колотят повсеместно, показали себя не плохо, тем более часто глина и возиться здесь земляными с промерзанием грунтов в 2,5 метра, не очень хочется, да и дорого самое главное. А сваи быстро, гарантия много лет, свайщики вообще про 150 лет говорят.

Сама коробка из бруса 180х180 мм. Строился из зимнего бруса, после острожки смотрится славно. Светлая древесина и запах за несколько десятков метров. Внутри так вообще до головокружения.

В гостиную поставили окна в пол. Сейчас все ставят окна в пол. Без окон в пол не представляю загородного дома.

А вот балкон на втором этаже считаю все же лишним. Не думаю что им пользоваться можно больше чем десяток раз в году под настроение. Зато красиво, здесь скорее из за внешнего вида.

В доме все почти готово для завоза мебели. Конечно электрику потом придется поправить, но сейчас уже очень даже не плохо. Когда сядет – четь подрезать и все!

В целом , на мой взгляд, получилось очень не плохо, но это больше вопрос вкуса! Проект и смету  ждите следом) 

Показать полностью 13 1
112

Небольшой дом - дача, по цене "квартиры студии" - Часть 2, проект

Этот пост с проектом дома который можно скачать и фото уже готовой постройки) НО!

Все началось  тогда, когда я сказал, что дом на собственном участке можно построить в альтернативу, квартире студии за 4 млн )

В ответ пришло огромное количество комментариев, у утверждением, что свой собственный дом, отдельной стоящий,  с отделкой, в ситуации когда коммуникации, стены, пол и потолок делишь с соседями должен стоить на много дешевле (раз в несколько) чем квартира без ремонта )

Вот про этот пост идет речь

Небольшой домик на участке или квартира-студия 42 м2 с собственной землей!

И про этот дом )

И про этот дом )

Это вторая часть, здесь вы сможете скачать проект дома (ниже в ПДФ), и если что то подобное захотите построить, то можете воспользоваться. Проект подойдет для любого банка, если соберетесь брать ипотеку. Выкладываю в свободный доступ, так как документ уже отработал свои задачи ) В следующем посте будет смета, а через неделю выложу рассказ про еще один дом)

Итак! Дом действительно не стоит 4 млн, стоит дешевле, чем квартира студия в Иркутске, и дешевле 4 млн. У нас стоимость недвижимости в среднем составляет 130 000 за м2. А значит квартира студия 42 м2 обойдется вам в 5,5 млн. плюс ремонт ) Детали давайте упустим, варианты как раз есть разные.

Собственно 3 пост в серии будет как раз со сметой .

Дом небольшой, фундамент сваи. Свайное поле выполнено с огромным запасом по нагрузке. Нагрузка на 1 столбик может быть до 6-10 тонн. Стоять такой фундамент будет лет 100 точно, именно столько выдержит циклов перехода через зиму и лето.

А дальше как сложится. Думаю нам с Вами и не важно уже будет. Сварщики говорят вообще 150 лет простоит.  

Обвязка из бруса 180х180 мм

Лаги брус 180х100 мм, листвяк, обработан

Фото со стройки слегка мутновато, простите

В чистоте этаж 2660 мм

Это вполне достаточно чтобы комфортно организовать свой отдых и проживание. Можно выше, но здесь остановились на таком решении. Также надо помнить, что брус у нас естественной влажности 180 на 180 мм. И обязательно усядет минимум на 3% этажа, а это - 8 см.

В доме небольшая кухня гостиная, спальня, сан узел и прихожая (она же по пожеланию тамбур).

Тут также было огромное количество вопросов, типа где тамбур? Он внутри дома! Можно было крыльцо обшить, но это затраты, которые можно понести позже, если первая зимовка покаже не комфортным работу текущего тамбура.

А так, конечно можно сделать вот это крыльцо теплым, и будет разрыв холодных потоков двумя дверьми.

Собственно внутри комнаты выглядят вот так

Далее! Балки перекрытия - брус 180 х 100 мм, утепление 200 мм

Также, друзья, если понадобится для работы план стропильной системы, ниже можете использовать имеющуюся схему

Кровля аккуратная, без перегибов - это значит выносы в меру, аккуратная подливочка из строганной доски

Файл с ПДФ доступен по ссылке:

Проект дома 42 м2

Там планы, развёртки кровли ( мы заказывали по ним профлист), также по планам фасада заказывали окна. Обязательно только после установки колод, надо вызвать замерщика для уточнения размеров!

В следующем посте будет смета с количеством материала )

Показать полностью 17

Домик просто огонь )

❤😍
Закончил строить такую прелесть, 70 м2 - кухня, гостиная, 2 спальни, сан узел, тамбур, очень компактное размещение на участке, терраса и балкон 💥💥 Пушка бомба)

В следующем посте выложу проект и описание дома со сметой )

Отличная работа, все прочитано!